Mục lục
ToggleSơ đồ công năng của văn phòng là một yếu tố cực kỳ quan trọng để cung cấp cái nhìn tổng thể cho chủ doanh nghiệp và nhà thầu thi công trước khi bắt tay vào thi công một dự án. Nó không chỉ cho thấy cấu trúc toàn bộ của văn phòng mà còn minh họa chi tiết về bố trí nội thất. Hãy cùng Co-IDB khám phá sâu hơn về bố trí mặt bằng văn phòng với sơ đồ công năng và tầm quan trọng của nó trong quá trình thực hiện dự án.

Sơ đồ công năng là gì?
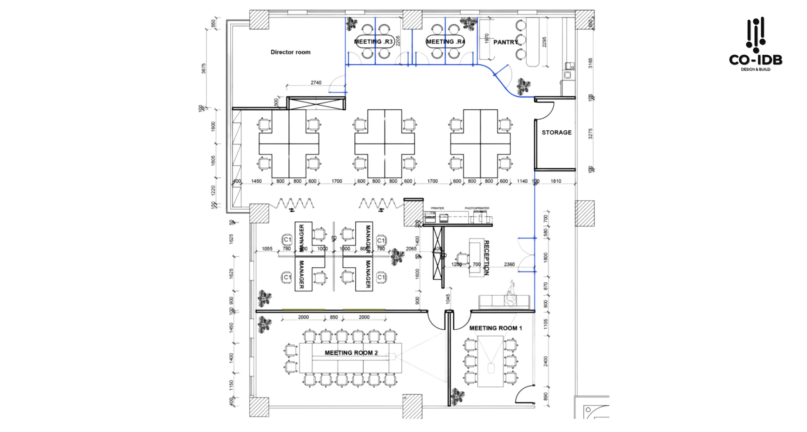
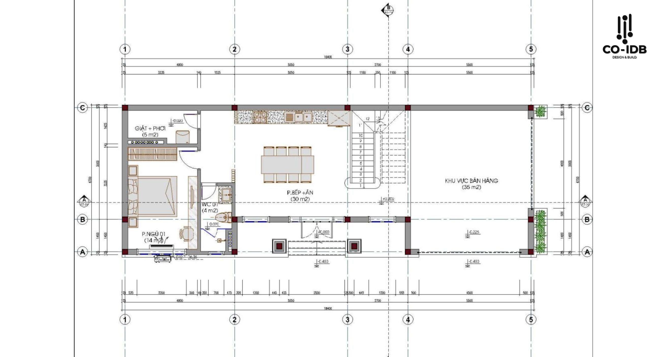
Sơ đồ công năng của văn phòng là bản vẽ lập kế hoạch mặt bằng giúp đơn vị thi công hiểu được cách phân chia và bố trí nội thất của từng khu vực trong không gian.
Trong một công trình kiến trúc, không gian thường được chia thành 5 nhóm công năng cơ bản sau đây:
-
Nhóm công năng kinh tế: Được áp dụng linh hoạt vào các loại hình khác nhau như không gian thương mại – dịch vụ, những khu vực sản xuất nhỏ và các văn phòng làm việc.
-
Nhóm công năng nghỉ ngơi: Đáp ứng những nhu cầu sinh lý cơ bản của con người như ăn uống, ngủ nghỉ và vệ sinh. Các không gian này bao gồm khu bếp, phòng ăn, phòng ngủ, khu vực sinh hoạt cá nhân và nghỉ ngơi, ban công, lô gia, hành lang, sân trong hoặc giếng trời (với diện tích nhỏ), và phòng tắm – vệ sinh.
-
Nhóm công năng giáo dục: Để đáp ứng ba hoạt động chính: giáo dục con cái, tự học và duy trì văn hóa gia đình theo truyền thống, nhóm công năng giáo dục bao gồm: phòng nghiên cứu, thư viện, khu vực học tập cá nhân, phòng sinh hoạt chung, không gian thờ cúng tổ tiên và gia thần, cũng như phòng lưu niệm gia đình.
-
Nhóm công năng giao tiếp đối ngoại: Phòng tiếp khách, phòng ăn chính (để tiếp khách), sân vườn, cổng vào, hiên nhà, tiền sảnh, và hành lang công cộng.
-
Nhóm công năng phát triển thẩm mỹ, tinh thần và thể chất: Bao gồm các hoạt động làm đẹp, giải trí, tập luyện và chăm sóc sức khỏe.
Tùy thuộc vào loại hình công trình và yêu cầu cụ thể của gia chủ, sơ đồ công năng có thể bao gồm đầy đủ hoặc chỉ một số nhóm công năng nêu trên.

Đặc điểm sơ đồ công năng của văn phòng
Việc tuân thủ nghiêm ngặt các tiêu chuẩn về bố trí mặt bằng thi công văn phòng công ty không chỉ đảm bảo một môi trường làm việc an toàn và thẩm mỹ mà còn giúp chủ doanh nghiệp dễ dàng hình dung rõ ràng kiến trúc nội thất của văn phòng. Dưới đây là những điểm nổi bật của sơ đồ công năng của văn phòng:
-
Hình ảnh rõ nét và trực quan, cung cấp góc nhìn 90 độ từ trên cao xuống.
-
Hình cắt ngang minh họa vị trí của cửa sổ, lối đi, hành lang và các phòng chức năng khác.
-
Với các công ty có nhiều tầng, mỗi tầng sẽ có một bản vẽ riêng biệt như tầng hầm, tầng trên và tầng thượng.
-
Sử dụng ký hiệu chữ in hoa để chỉ rõ các vật thể, chi tiết nội thất và trang thiết bị cần thiết.
-
Bản vẽ loại bỏ các góc khuất và điểm chết không cần thiết của dự án.

Các loại sơ đồ bố trí mặt bằng văn phòng
Mặt bằng tổng thể
Mặt bằng tổng thể văn phòng là bản vẽ sơ đồ mô tả cách bố trí, trang trí nội thất và phân bổ không gian cho các phòng ban trong toàn công ty. Bằng cách nhìn vào mặt bằng sơ đồ tổng thể, chủ doanh nghiệp có thể dễ dàng nhận biết số lượng tầng, phân khu và các tiện ích đặc biệt của văn phòng. Mỗi khu vực trên mặt bằng tổng thể sẽ được ghi chú và đánh số theo thứ tự.
Mặt bằng tầng cụ thể
Mặt bằng tầng cụ thể là bản vẽ sơ đồ chi tiết biểu thị thông tin rõ ràng về diện tích từng phòng ban và các kích thước chuẩn của chúng. Bằng cách nhìn vào bản vẽ này, chủ doanh nghiệp có thể dễ dàng xác định diện tích mỗi khu vực cùng với các kích thước chiều rộng, chiều dài và độ cao của từng tầng.

Vai trò của sơ đồ công năng của văn phòng trong thiết kế
Trong thi công văn phòng hiện đại, sơ đồ công năng của văn phòng đóng vai trò vô cùng quan trọng, là nền tảng quyết định sự thành công của một bản thiết kế hoàn chỉnh và đáp ứng các tiêu chí sau đây:
-
Thể hiện thông số cơ bản của công trình
-
Quản lý công trình hiệu quả
-
Đảm bảo tính khoa học của công trình
-
Bố trí nội thất hợp lý
Các ký hiệu trên sơ đồ công năng trên sơ đồ bố trí mặt bằng văn phòng
Trên sơ đồ công năng của văn phòng, thường sẽ có các ký hiệu liên quan đến kích thước, nội thất và trang thiết bị cần thiết, bao gồm:
-
Kích thước của tường, cửa ra vào và cửa sổ sẽ được vẽ sát với đường biên.
-
Kích thước các trục tường biên theo chiều dọc và chiều ngang sẽ được thể hiện ở hàng ngoài cùng của sơ đồ.
-
Khoảng cách giữa các trục cột và tường sẽ được thể hiện ở hàng thứ hai.
-
Cầu thang thường được biểu diễn bằng đường gấp khúc và các đồ nội thất như bàn ghế, kệ, tủ đựng đồ sẽ được ký hiệu bằng chữ cái in hoa.

Thông tin này giúp các bên liên quan dễ dàng hiểu được cấu trúc và bố trí của không gian văn phòng trong dự án thiết kế. Để quý khách có thể dễ dàng tiếp cận và hiểu rõ hơn, Co-IDB cập nhật bảng ký hiệu viết tắt trên sơ đồ mặt bằng văn phòng, được áp dụng phổ biến trong cộng đồng ngày nay như sau:
|
Ký hiệu |
Tiếng Anh |
Tiếng Việt |
|
AC |
Air Conditioner |
Điều hòa |
|
B |
Basin |
Lưu vực |
|
BC |
Bookcase |
Kệ sách |
|
CAB |
Cabinet |
Tủ/kệ |
|
CF |
Concrete floor |
Sàn bê tông |
|
CLG |
Ceiling |
Trần nhà |
|
COL |
Column |
Cột |
|
LTG |
Lighting |
Chiếu sáng |
|
VENT |
Ventilator |
Quạt thông gió |
|
WD |
Window |
Cửa sổ |
Sơ đồ công năng của văn phòng gồm những gì?
Sơ đồ mặt bằng bố trí nội thất
Một yếu tố quan trọng của sơ đồ công năng của văn phòng là sơ đồ bố trí mặt bằng nội thất. Đây là sơ đồ 2D được tạo ra bằng cách chiếu lên các bề mặt để biểu diễn 2 chiều, minh họa rõ ràng cách bố trí các phòng ban, khu vực chức năng hay thiết kế lắp đặt vách ngăn văn phòng khi nhìn từ trên cao xuống.
Tất cả các thông tin này phải tuân thủ theo Tiêu chuẩn Việt Nam về thiết kế văn phòng (TCVN). Sơ đồ có thể được vẽ theo tỉ lệ 1:20 hoặc 1:200 tùy vào diện tích của từng văn phòng.

Bản vẽ 2D
Bản vẽ 2D là một bản vẽ phẳng, thể hiện tổng quan về cách bố trí không gian văn phòng từ một góc nhìn chiếu từ trên xuống. Bản vẽ này bao gồm các bức tường, cửa ra vào, cửa sổ và sắp xếp nội thất, nhưng thiếu thông tin về chiều sâu và chiều cao.

Phối cảnh 3D
Phối cảnh 3D là một bản vẽ thể hiện không gian văn phòng ba chiều, cung cấp một cái nhìn thực tế hơn, biểu thị chiều cao, chiều sâu và mối quan hệ không gian giữa các yếu tố trong văn phòng. Loại sơ đồ này giúp người xem hình dung văn phòng từ nhiều góc độ khác nhau, dễ dàng hiểu được cách không gian sẽ trông như thế nào và hoạt động ra sao trong thực tế.

Bản vẽ hệ thống dẫn nước
Nếu văn phòng có khu pantry hoặc nhà vệ sinh, bao gồm chậu rửa tay cho nhân viên, việc có bản vẽ hệ thống ống dẫn nước là cần thiết. Bản vẽ này minh họa toàn bộ hệ thống ống dẫn nước và vệ sinh của văn phòng, bao gồm các thiết bị, đường ống, máy bơm và hệ thống thoát nước. Nội dung của bản vẽ cung cấp thông tin chi tiết về vị trí, thiết bị và quy trình kết nối phụ kiện.

Bản vẽ mặt bằng bố trí điện
Bản vẽ mặt bằng bố trí điện họa các thông tin về hệ thống chiếu sáng, dây điện, nguồn điện và mạch điện của dự án văn phòng. Nó mô tả cách bố trí dây dẫn và các thành phần mà chúng kết nối trong văn phòng và giữa văn phòng với tòa nhà. Các ký hiệu trong bản vẽ thể hiện các thành phần như cầu dao, máy biến áp, tủ điện và dây dẫn.

Hy vọng rằng, qua bài viết này quý khách hàng đã nắm được cách đọc và hiểu sơ đồ công năng của văn phòng. Nếu còn bất kỳ thắc mắc nào về chủ đề thiết kế thi công nội thất văn phòng, liên hệ ngay với Co-IDB để được hỗ trợ nhanh chóng và hoàn toàn miễn phí.
>> Xem thêm: